
羽毛球场的要求
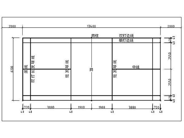
一、球场:
1、球场应是一个长方形,用宽40毫米的线画出。
2、场地线的颜色应是白色、黄色或其他容易辨别的颜色。
3、测试正常球速区域的4个40毫米×40毫米的标记,应画在双方单打右发球区边线内沿,距端线530毫米和990毫米处。
4、这些标记的宽度均包括在所画的尺寸内,即距端线外沿530毫米至570毫米和950毫米至990毫米。
5、所有场地线都是它所确定区域的组成部分。
6、如面积不够画出双打球场,可画一单打球场,端线亦为后发球线,网柱或代表网柱的条状物应放置在边线上。
二、网柱:
1、从球场地面起,网柱高1.55米。网柱须稳固地同地面垂直,并使球网保持紧拉状态。网柱应放置在双打的边线上。
2、如不能设置网柱,须采用其他办法标出边线通过的位置。
3、在双打球场上,不论进行的是双打还是单打比赛,网柱或代表网柱的条状物,均应置于双打边线上。
三、球网:
1、球网应是深色、优良的细绳织成。网孔方形,各边长均在15~20毫米之间。
2、网上下宽760毫米。
3、网的顶部用75毫米宽的白布对折而成,用绳索或钢丝从夹层穿过。白布边的上沿须紧贴绳索或钢丝。
4、绳索或钢丝须有足够的长度和强度,能牢固地拉紧并与网柱顶部取平。
5、球场中 央网高1.524米,双打边线处网高1.55米。
6、球网的两端须与网柱系紧,它们之间不应有空隙
羽毛球场规格 2022-9-5 本文被阅读 216 次
| 上一条:排球场规格 | 下一条:网球场规格 |






